| ECOdrei-Projekte | ![]() |
2010
ECOdrei / Max-Halbach-Straße in Mülheim an der Ruhr ![]()
![]()
![]()
Vorplanung einer Eigentumswohnanlage mit 11 Wohneinheiten und einer Parkgarage mit 16 Stellplätzen
Wohnfläche ca.:
Umbauter Raum:
Herstellungskosten ca.:
Auftraggeber: ECOdrei Projektgesellschaft Max-Halbach-Straße GmbH & Co. KG, Essen
Bearbeitet: H.-J. Dramowski bei dramowski-plan
Realisierung noch unklar
![]()
![]()
![]()

Ansicht der Vorplanung
![]()
![]()

Visualisierung der Planung
Visualisierung der Planung ![]()
![]()

Visualisierung der Planung
![]()
![]()
Untergeschossgrundriss
Erdgeschossgrundriss ![]()
![]()
Obergeschossgrundriss
Staffelgeschossgrundriss ![]()
![]()
![]()
2010
ECOdrei / Wallotstraße in Essen-Huttrop ![]()
![]()
![]()
Vorplanung für eine Eigentumswohnanlage mit 6 Wohneinheiten und einer Parkgarage mit 10 Stellplätzen
Die Vorplanung ging vom Abriss des Bestandsgebäudes aus dem Jahr 1935 aus
Wohnfläche ca.:
Umbauter Raum:
Herstellungskosten ca.:
Auftraggeber: ECOdrei Projektgesellschaft Girardetstraße GmbH & Co. KG, Essen
Bearbeitet: H.-J. Dramowski bei dramowski-plan
Das Projekt wird vom Auftraggeber nicht realisiert
![]()

Bestandsgebäude
Erdgeschossgrundriss
Grundriss Stafelgeschoss ![]()
![]()

Visualisierung der Vorplanung
![]()
![]()

Visualisierung der Vorplanung
![]()
![]()
![]()
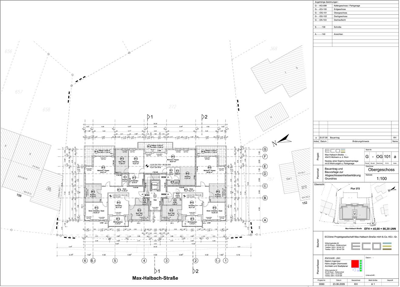
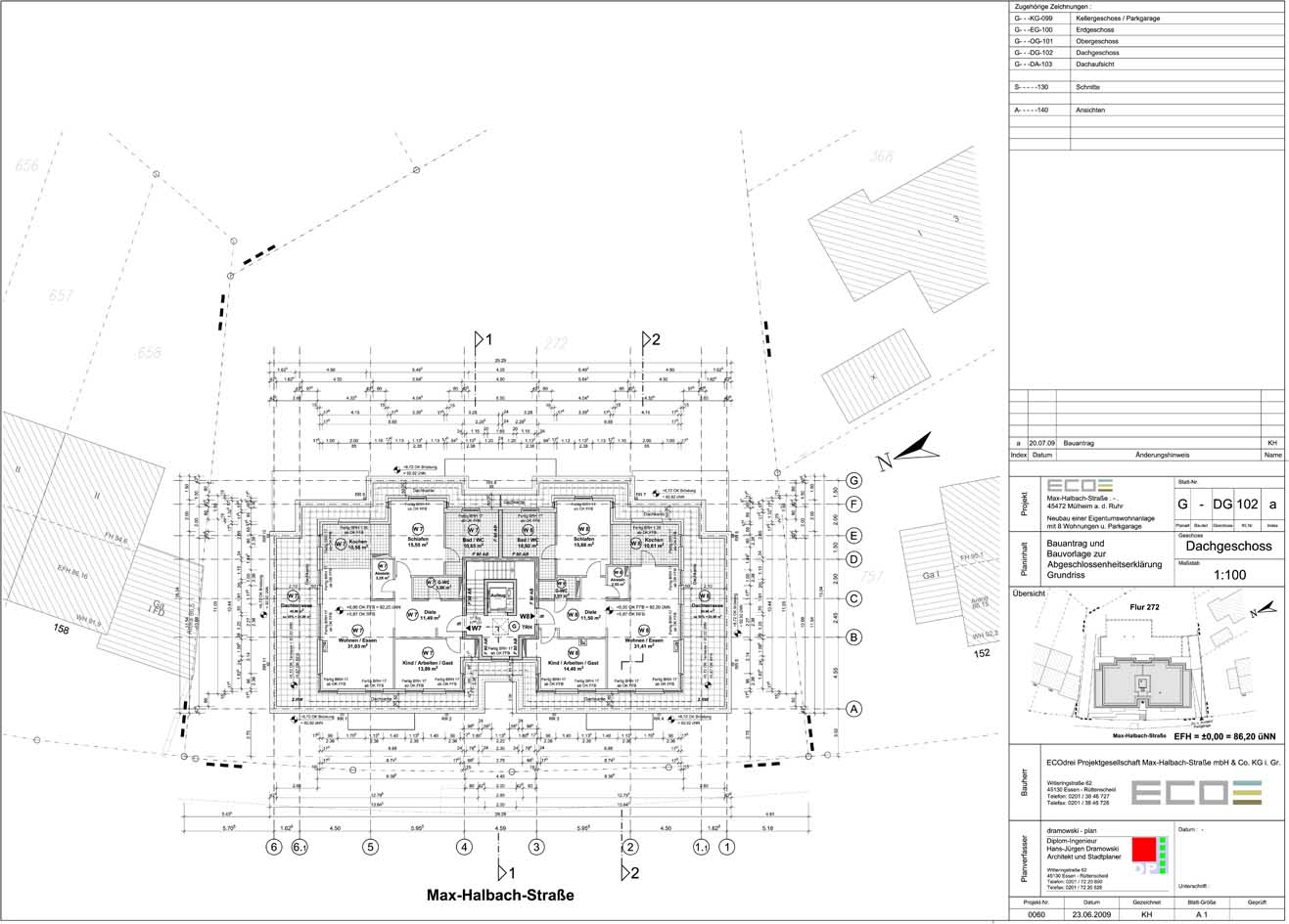
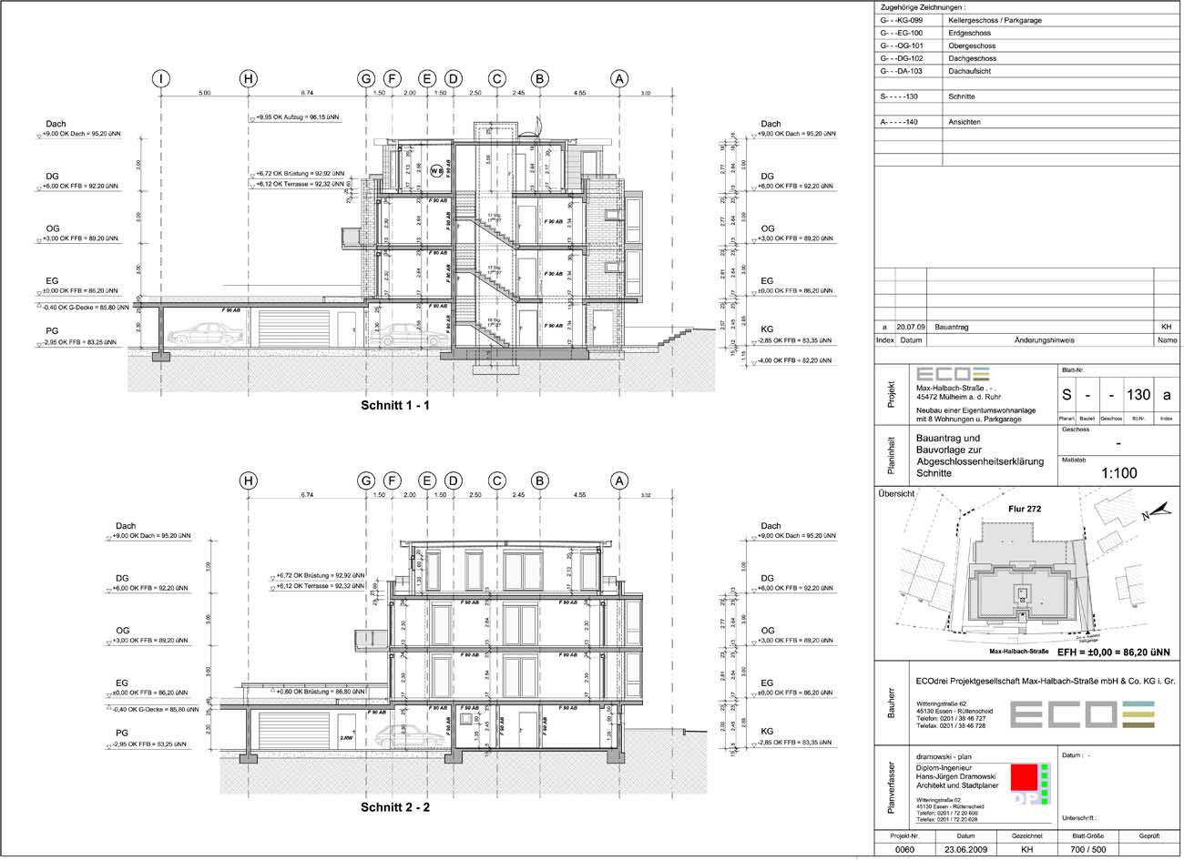
2009-2010
ECOdrei / Max-Halbach-Straße 154 in Mülheim an der Ruhr ![]()
![]()
![]()
Planung einer Eigentumswohnanlage mit 8 Wohneinheiten und einer Parkgarage mit 12 Stellplätzen
Wohnfläche ca.:
Umbauter Raum:
Herstellungskosten ca.:
Auftraggeber: ECOdrei Projektgesellschaft Max-Halbach-Straße GmbH & Co. KG, Essen
Bearbeitet: H.-J. Dramowski bei dramowski-plan
Entwurf, Bauantrag, Ausführungsplanung, Baugenehmigung liegt vor
Realisierung in Kürze
![]()
![]()
![]()

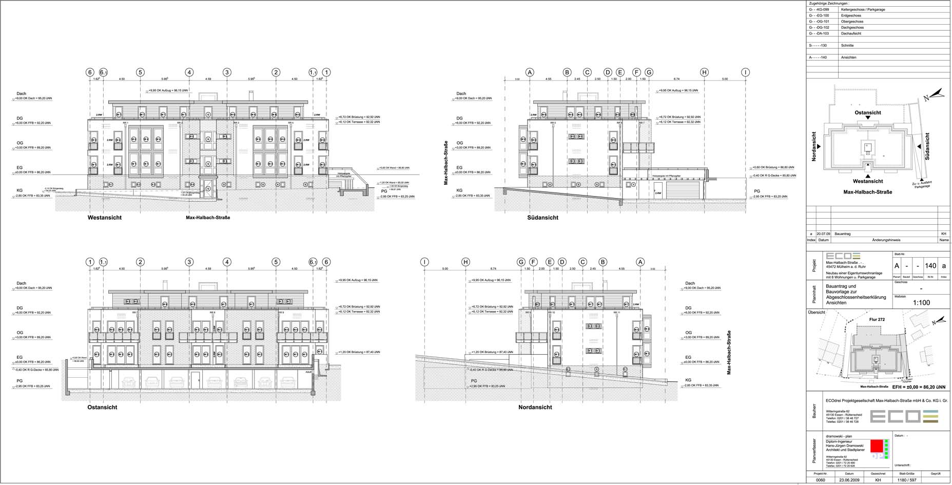
Ansichten Bauantrag
![]()
![]()

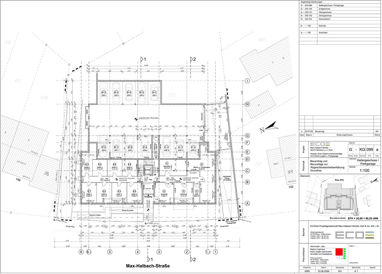
Bauantrag Grundriss Untergeschoss
![]()
![]()

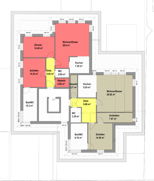
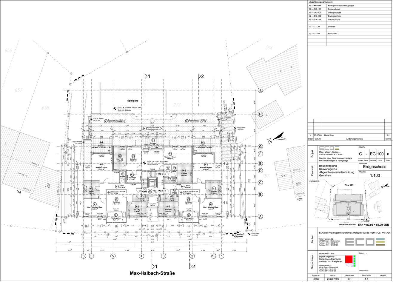
Bauantrag Grundriss Erdgeschoss
![]()
![]()

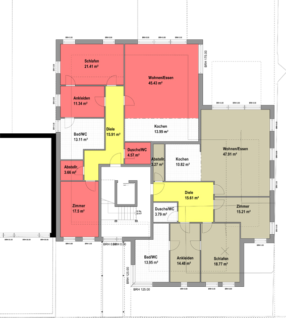
Bauantrag Grundriss Obergeschoss
![]()
![]()

Bauantrag Grundriss Staffelgeschoss
![]()
![]()

Bauantrag Schnitte
![]()
![]()

Vermarktungsplan Saffelgeschoss
![]()
![]()

Visualisierung der Planung 





Visualisierung der Planung

2009
ECOdrei / Girardetstraße 54 in Essen-Rüttenscheid



Beschreibung folgt



Visualisierung der geplanten Straßenansicht
Visualisierung der geplanten Gartenansicht 


Erdgeschossgrundriß 


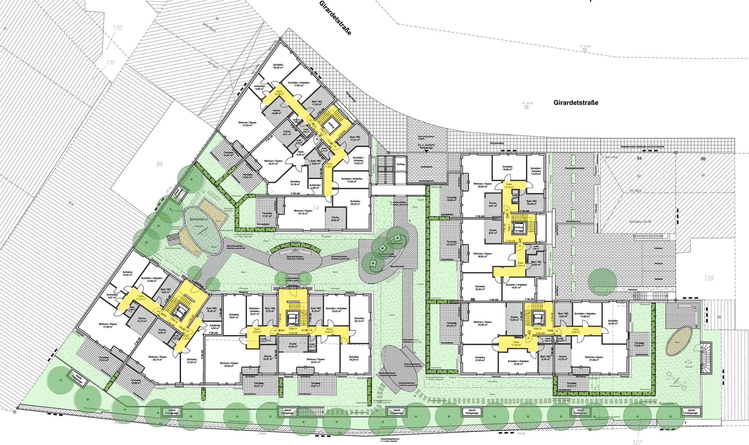
2006-2009
ECO drei / Girardetstraße 48-52 B in Essen-Rüttenscheid 


Planung einer Eigentumswohnanlage mit 42 Wohneinheiten und einer Parkgarage mit 62 Stellplätzen Umbauter Raum:
Wohnfläche ca.:Umbauter Raum:
Herstellungskosten ca.:
Auftraggeber: ECOdrei Projektgesellschaft Girardetstraße GmbH & Co. KG, Essen
Bearbeitet: H.-J. Dramowski bei dramowski-plan
Entwurf, Bauantrag, Ausführungsplanung, Freianlagenplanung
Realisierung abgeschlossen



Luftbild Bestand 




3D-Modell als Übersicht
Visualisierung Rückfront Bauteil C
Text


Text 



Modell M. 1:100 


Grundriss Erdgeschoss mit Entwurf der Außenanlage 


Blick auf Bauteil B Eingangsseite




Straßenansicht Bauteil C
Durchblickk nach Bauteil A


Detail Innenhof vor Bauteil A 



Luftbild der fertiggestellten Wohnanlage

Mehr Abbildungen Link unten ![]()
![]()
https://fotos.web.de/dramowski-plan/ECOdrei_Giraradetstrasse_Essen


